Phòng sơn sấy hồng ngoại xe tải & xe Bus đồng bộ chất lượng cao Hoàng Minh




+ Phòng sơn ô tô xe tải và xe buýt nằm trong hệ thống phòng sơn ô tô của Công Ty TNHH Thiết bị Auto Hoàng Minh. Phòng sơn ô tô xe tải và xe buýt được thiết kế theo tiêu chuẩn kỹ thuật rất nghiêm ngặt của Châu Âu về thông số kỹ thuật kết hợp với sự điều chỉnh nhỏ trong hệ thống điện để phù hợp với khí hậu nhiệt đới vì thế nó đáp ứng mọi yêu cầu làm việc về khí hậu tại Việt Nam.
+ Dòng sản phẩm chuyên dụng phòng sơn ô tô xe tải và xe buýt đã và đang được phân phối độc quyền bởi Công Ty TNHH Thiết bị Auto Hoàng Minh.đơn vị phân phối thiết bị sửa chữa ô tô hàng đầu Việt Nam.
+ Phòng sơn ô tô xe tải và xe buýt của Hoàng Minh, là hệ thống phòng sơn ô tô rất đặc biệt có mặt trên thị trường bởi vì đây là phòng sơn không tuân theo một tiêu chuẩn nhất định, mà kích thước hay công suất motor cấp hút phụ thuộc vào nhu cầu làm việc thực tế của khách muốn sơn chủng loại xe nào.
– Khung cửa bằng nhôm tăng cứng tiêu chuẩn Italy.
– Đồng hồ báo áp suất theo tiêu chuẩn Châu Âu.
– Tường dày 50 mm, sơn tĩnh điện, Vật liệu cách âm cách nhiệt.
– Hệ thống lắp ráp kiểu âm sàn 2 dãy song song
Thông số kỹ thuật:
+ Hệ thống cabin
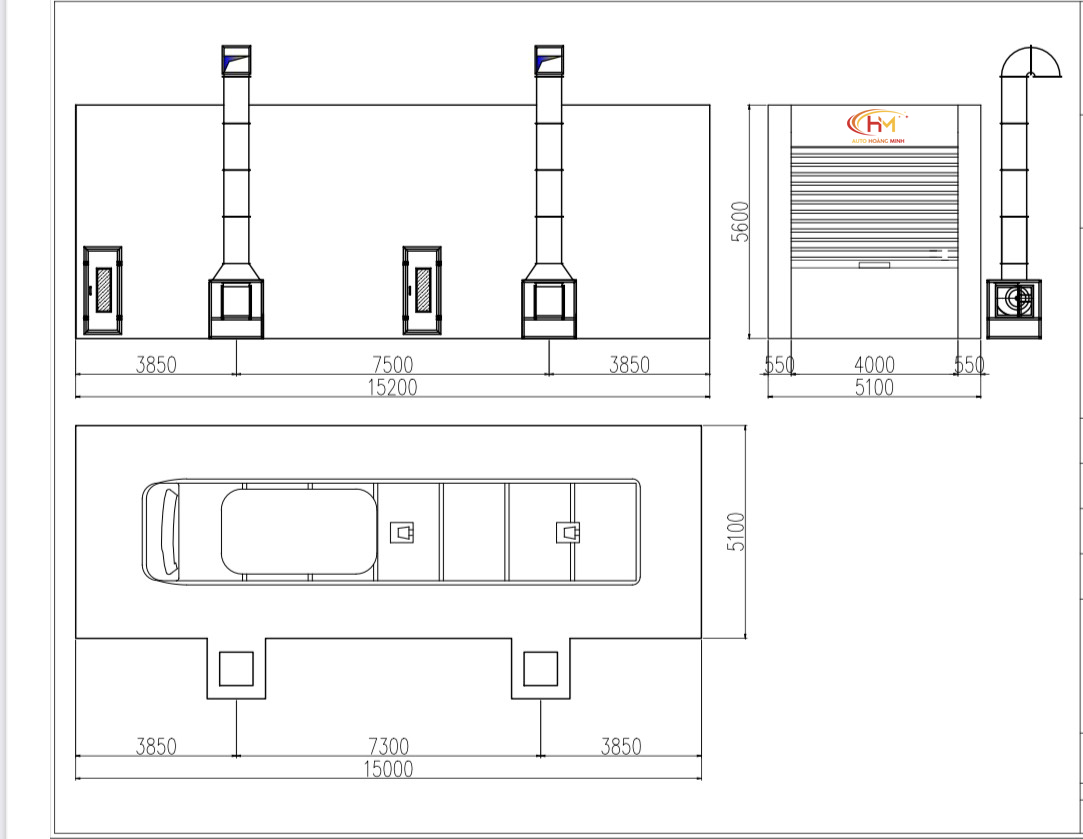
+ Kích thước trong lòng: 15 x 5 x 5m;
Cửa:
+ Cửa cuốn trước, sau: 4 x 4.6m
+ Cửa cuốn ngăn phòng:5,1 x 4,6m
+ Cửa phụ: 800 x 2000m; 02 Cửa cho 1 phòng; ô cửa kính nhìn trong, sàn PU
+ Tấm vách dày 50mm rộng 1000mm lắp ghép lưỡi xêp liền, Vật liệu EPS phủ tôn 2 lớp dày 0.4mm”
+ Vách phòng sơn:
– Vật liệu: Panel EPS cách nhiệt
– Cấu tạo: gồm 3 lớp: 02 lớp tôn mạ màu 0.4mm nhằm đảm bảo chống ăn mòn và oxi hóa; 01 lớp xốp EPS có tác dụng cách nhiệt, cách âm
– Chiều dày tấm Panel EPS: 50mm
– Các tấm EPS lắp ghép xếp liền với nhau và được cố định trên day U53mm
+ Tấm trần lắp ghép lưỡi xêp liền, Vật liệu tôn dày 0.4mm”
+ Hệ thống chiếu sáng:
+ Trần chéo: có 10 tổ hợp đèn mỗi bên, tổng cộng 20 tổ hợp, mỗi tổ hợp 04 bóng LED 18W; tổng cộng: 1440W”
+ Sườn trái và phải có 13 tổ hợp bóng, tổng cộng 26 tổ hợp, mỗi tổ hợp 02 bóng LED 18W; tổng cộng: 936W
+Tổng công suất chiếu sáng: 2376W”
Hệ thống cấp khí: 02 cụm quạt cấp, mỗi cụm 02 quạt 7,5KW, tổng công suất quạt cấp: 15KW
+ Thông số kỹ thuật quạt cấp :
– YDW5.6M Công suất: 7.5KW
– Lưu lượng: 19000-20000m3/h
– Áp suất: P790-830pa
– Số vòng quay: 900rpm
– Trọng lượng: 160kg
+ Bằng cách áp dụng công nghệ của Siemens, quạt ly tâm hai đầu vào dòng YDW được tạo thành từ các tấm mạ kẽm đúc nén.
+ Quạt này cho lượng không khí lớn, tiếng ồn thấp và khả năng chịu nhiệt độ tuyệt vời. Nó được sản xuất bởi một nhà máy sản xuất quạt chuyên dụng.
+ Hộp quạt được làm tư tôn gấp mép 1.0mm 03 lớp chống ồn, cách nhiệt”
Hệ thống hút khí: 02 cụm quạt hút, mỗi cụm 02 quạt 5,5KW, tổng công suất quạt hút: 11KW
+ Quạt hút : YDW-5.6S
– Công suất: 5,5KW
– Lưu lượng: 13000-15400m3/h
– Áp suất: P810-825pa
– Số vòng quay: 900rpm
– Trọng lượng: 160kg
+ Bằng cách áp dụng công nghệ của Siemens, quạt ly tâm hai đầu vào dòng YDW được tạo thành từ các tấm mạ kẽm đúc nén.
+ Quạt này cho lượng không khí lớn, tiếng ồn thấp và khả năng chịu nhiệt độ tuyệt vời. Nó được sản xuất bởi một nhà máy sản xuất quạt chuyên dụng.
+ Hộp quạt được làm tư tôn gấp mép 1.0mm 03 lớp chống ồn, cách nhiệt”
+ Hệ thống sấy hồng ngoại:
+ Bao gồm 26 hộp đèn sấy hồng ngoại, mỗi hộp sấy 03 bóng hồng ngoại dài 525mm, công suất mỗi bóng 1000W
+ Tổng công suất sấy: 78KW”
-Hệ thống đóng mở cửa gió: Điều khiển Khí nén thông qua các van điện khí nén và xy lanh khí nén
+ Hệ thống lọc: 04 loại
+ Lọc thô:
– Tiêu chuẩn: EU2/G2
– Vận tốc dòng khí: 2m/s
– Lưu lượng khí định mức:7200m3/h
– Khả năn giữ bụi: 400g/m2
+ Lọc trần: 600G
– Tiêu chuẩn: F5/EU5
– Vận tốc dòng khí: 0,25m/s
– Lưu lượng khí định mức: 900m3/h
– Khả năn giữ bụi: 600g/m2
+ Lọc sàn : PA-50
– Kích thước: 0.8 x 20m x 50mm
– Tiêu chuẩn: G2/EU2
– Vận tốc dòng khí: 2m/s
– Lưu lượng khí định mức: 7200m3/h
– Khả năn giữ bụi: 3500g/m2
+ Lọc carbon: Carbon Foam PU 60PPI
1x2mx10mm
-Vận tốc dòng khí: 1.5m/s”
Sàn grating 02 dãy:
+ Hệ thống sàn âm 2 dãy Bên,
+ sàn lưới tiêu chuẩn đan thép 50 x 8mm; nèo sắt trơn 10mm
+ Tải trọng 4000kg/bánh
Bên dưới sàn grating là các tấm sàn lưới đỡ lọc sàn”
Hệ thống điều khiển:
+ Trang bị hệ thống chống mất pha, đảo pha, quá nhiệt, công tắc dừng khẩn cấp
+ Mặt điều khiển cắt CNC Inox sáng bóng, in tiếng Việt”
– Ống gió: Ống thoát gió tiêu chuẩn: 06m + 01 cút vuông
– Tổng công suất:106KW
Phòng lắp âm sàn, chưa bao gồm chi phí làm hố móng
Những hình ảnh được lắp đặt tại các hãng xe nổi tiếng như: Hyundai,thaco,ford……..







Mọi chi tiết liên hệ: 0966496378 – 0948202347